Používame cookies

Súbory cookie a ďalšie technológie sledovania používame na zlepšenie vášho zážitku z prehliadania našich webových stránok, na to, aby sme vám zobrazovali prispôsobený obsah a cielené reklamy, na analýzu návštevnosti našich webových stránok a na pochopenie toho, odkiaľ naši návštevníci prichádzajú. Viac info

Chorvátsko - Sukošan Novostavba apartmánu len 250m od mora

Popis nehnuteľnosti

Zdieľať na Facebooku

Sukošan - LUXUSNÝ APARTMÁN S VLASTNOU ZÁHRADOU, LEN 250 M OD MORA! 

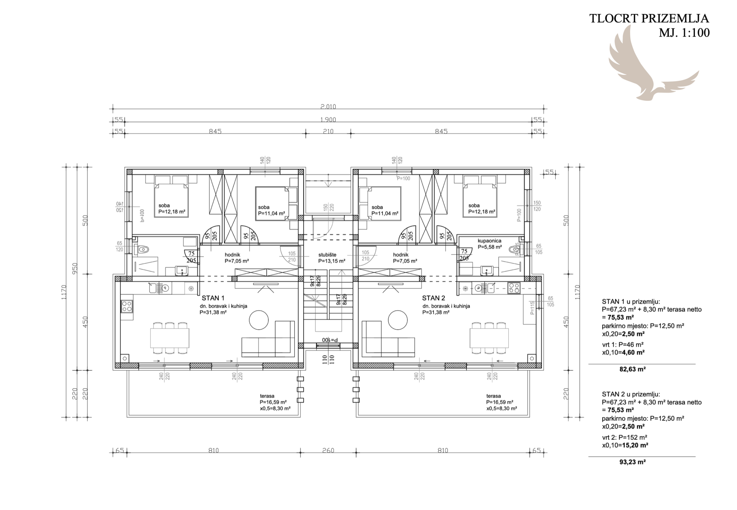
Hľadáte ideálne miesto na dovolenku alebo tiché celoročné bývanie pri Jadrane? Ponúkame Vám moderný apartmán (S1) na prízemí novej, budovy s iba 6 bytovými jednotkami v atraktívnom Sukošane.

 Kľúčové Vlastnosti Apartmánu S1 (Prízemie):

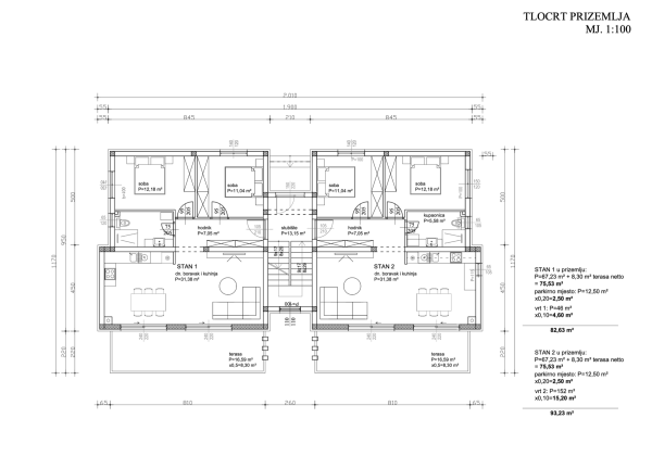
Celková plocha: 82,63 m² (obytná plocha 75,53 m²)

Dispozícia: Priestranná otvorená kuchyňa spojená s jedálňou a obývačkou, dve spálne, kúpeľňa.

Exteriér: Krytá terasa s priamym vstupom do vlastnej záhrady o výmere 46 m² a jedno vonkajšie parkovacie miesto.

Štandard, Ktorý Presvedčí:

Táto budova je synonymom špičkovej kvality a luxusu:

Materiály: Keramika od renomovaného výrobcu Marazzi.

Komfort: Termohliníkové stolárstvo pre maximálnu izoláciu.

Kúrenie/Chladenie: Inverterové klimatizácie Daikin a moderné podlahové kúrenie vo všetkých miestnostiach (okrem spální).

Bezkonkurenčná Lokalita:

Vzdialenosť od mora: Iba 250 metrov – pár krokov k pláži!

Prostredie: Tichá a príjemná oblasť, ideálna na relaxáciu alebo rodinný život.

 Dôležité Informácie:

Stav: Vo výstavbe. Dokončenie a nasťahovanie najneskôr do 15. marca 2026.

Výhoda: Predávajúci je právnická osoba. Kupujúci NEPLATÍ daň z prevodu nehnuteľností!
 

PREHĽAD VOĽNÝCH APARTMÁNOV V BUDOVE:

ApartmánPlochaCenaPoschodie

S1- 82,63 m²289 205,00 EURPrízemie (So záhradou)

S2- 93,23 m²326 305,00 EURPrízemie (So záhradou)

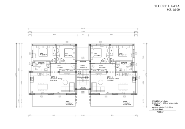
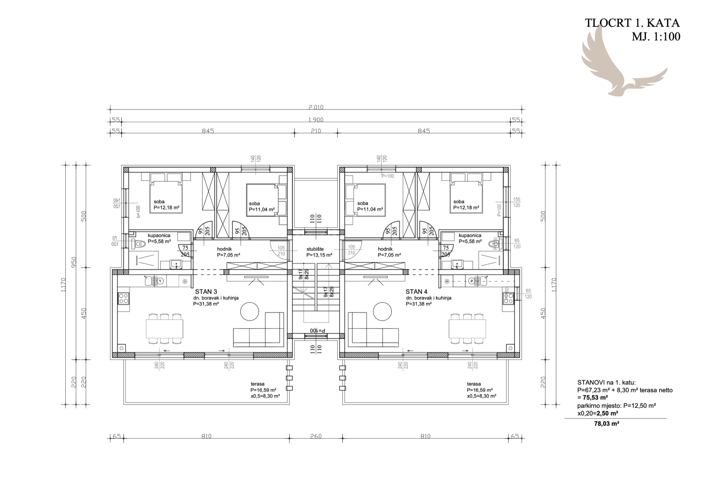
S3- 78,03 m²273 105,00 EURPrvé poschodie

S4- 78,03 m²273 105,00 EURPrvé poschodie

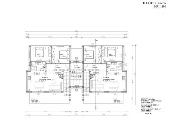
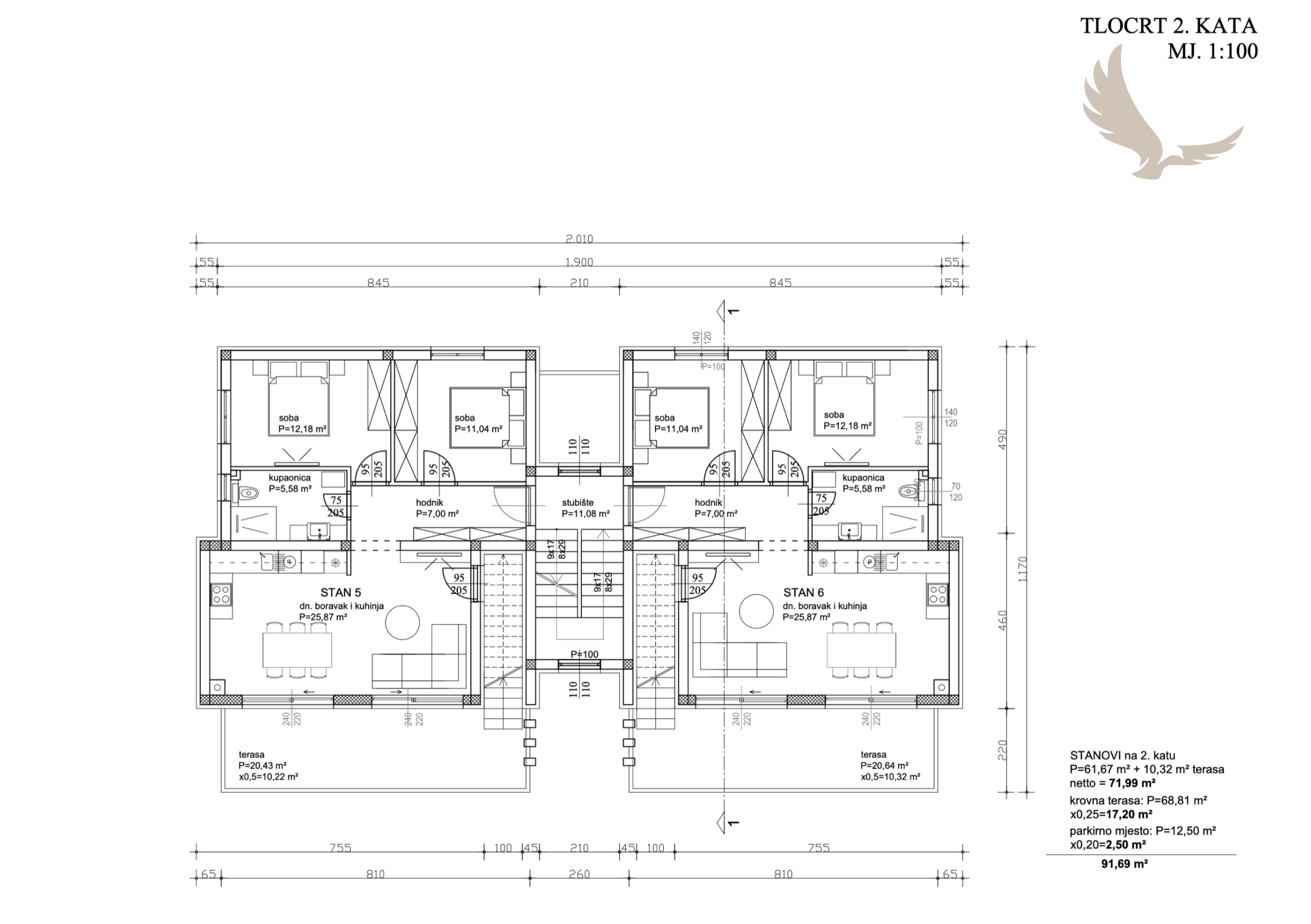
S5- 91,69 m²339 253,00 EURDruhé poschodie (Penthouse)

S6- 91,69 m²339 253,00 EURDruhé poschodie (Penthouse)

ZAUJALO VÁS TO? NEVÁHAJTE!

Pre viac informácií, kompletnú ponuku alebo dohodnutie obhliadky ma prosím kontaktujte.

Martina

Telefón: 00421 944 250 310 Email: martina@novebyvanierk.sk

Viac fotografií a celú našu ponuku nájdete na našej stránke.

 

Vlastnosti

Status:
aktívne
Vlastníctvo:
osobné
Úžitková plocha:
82.63 m2
Zastavaná plocha:
150 m2
Stav:
novostavba
Počet izieb:
3
Energetický certifikát:
A
Loggia:
áno
Terasa:
áno
Rok výstavby:
2025
Pozícia:
Prízemie
Celková plocha:
128 m2
Plocha loggie:
9 m2
Počet logií:
1
Terasa plocha:
46 m2
Počet terás:
1
Počet vonkajších parkovacích miest:
1
Inžinierske siete:
áno
Voda:
áno
Elektrika:
áno
Kanalizácia:
áno
Voda - na pozemku:
áno
Elektrika - na pozemku:
áno
Vykurovanie - podlahové:
áno
Internet:
áno
Káblová TV:
áno
Iné:
áno

Hypotekárna kalkulačka

289 205 €
Ulica: Sukošan
Obec: Sukošan
Okres: Zadarská župa
Kraj: Zadarská župa
Druh: Byty
Typ: Predaj
Typ bytu: 3-izbový byt
Iné:

Martina Koreňová

Lokalita: Chorvátsko
  • Hrvatski

Radi Vám poradíme

Máte otázku?